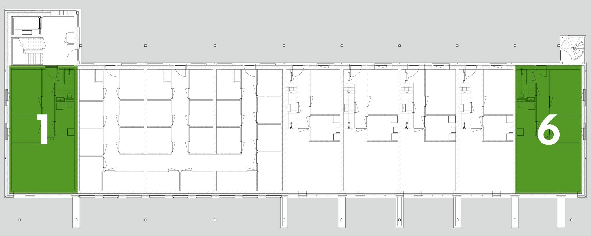
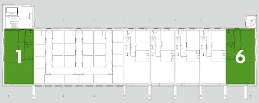
Appartement 6
Kenmerken
Dit is een Koopstart woning.
Eigenschappen
Appartement
Woonoppervlakte
ca. 62 m2
Tuinoppervlakte
ca. 14 m2
€ 270.795 v.o.n.
Verkocht

Vul hieronder uw gegevens in om de informatie te ontvangen. U kunt hierbij kiezen om de informatie hardcopy af te halen bij de makelaar of digitaal te ontvangen via de mail.