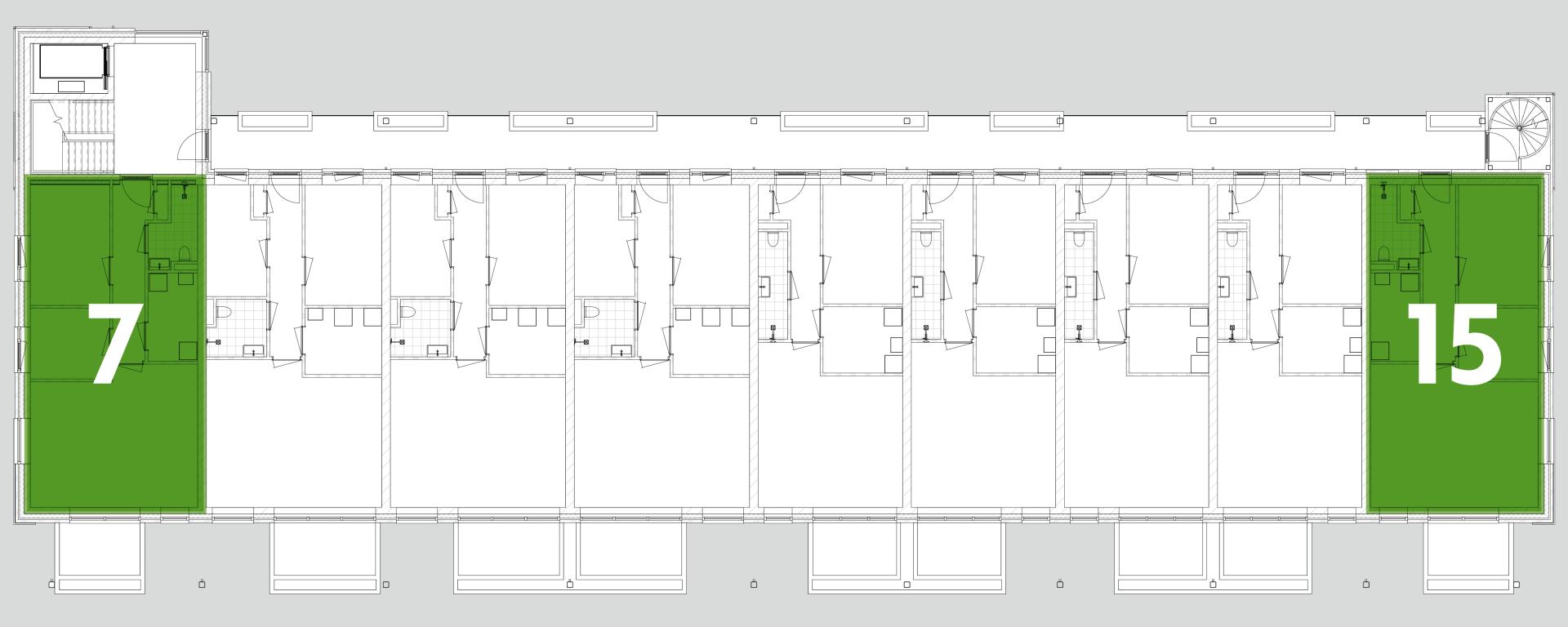
Appartement 15
Kenmerken
Dit is een Koopstart woning.
Eigenschappen
Appartement
Woonoppervlakte
ca. 62 m2
Balkonoppervlakte
ca. 5 m2
€ 270.795 v.o.n.
Verkocht

Vul hieronder uw gegevens in om de informatie te ontvangen. U kunt hierbij kiezen om de informatie hardcopy af te halen bij de makelaar of digitaal te ontvangen via de mail.